• Работы
  • О нас
Sredaa

Студия архитектуры и дизайна

  • Работы
  • О нас

Пожарное депо

Концепция станции пожарной охраны.
Москва, Инновационный центр «Сколково»

Пожарное депо, 2018

Идея: Пётр Любавин, Андрей Виниченко, Елена Мамаева, Виктория Хныченкова, Елена Гусельникова

Визуализация: Пётр Любавин

Выполнено совместно с архитектурным бюро YACHEYKA


Участок под застройку расположен на пересечении ул. Кулибина и ул. Зворыкина. Здание стоит на фоне минималистического индустриального фасада Технопарка и служит своеобразным въездным знаком в Инновационный центр «Сколково» со стороны Можайского шоссе.

Трехчастный объем здания поднимается ступенями со стороны ул. Кулибина. Въезды в здание расположены с ул. Кулибина и ул. Зворыкина. Выезды пожарной техники с ул. Зворыкина и ул. Кулибина. Также существует заезд к административно-учебной части со стороны ул. Кулибина. В огороженном внутреннем дворе расположена тренировочная площадка с зоной воркаут и двумя полосами с препятствиями.

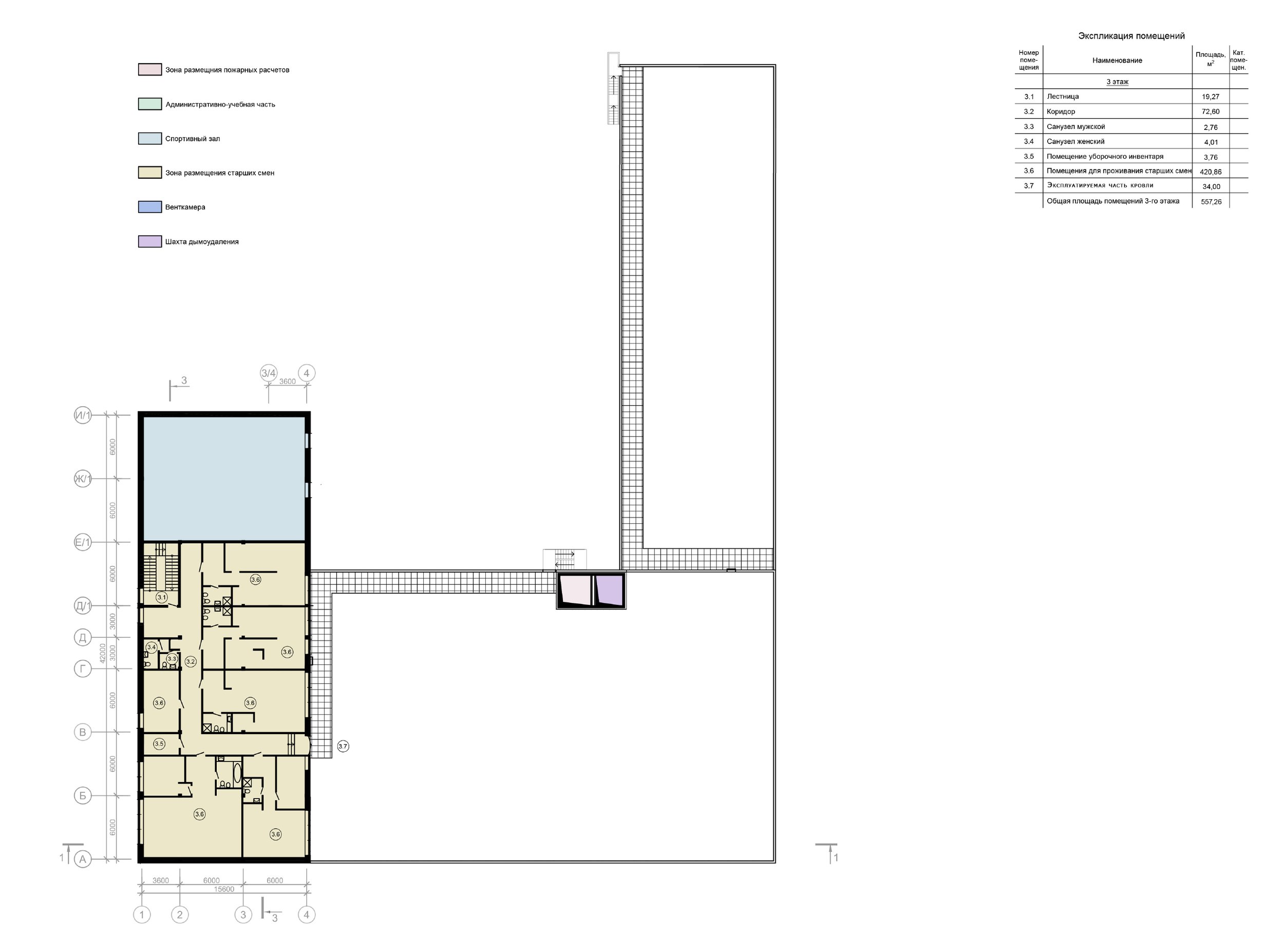
Функционально здание чётко разделено на 4 основных зоны: пожарные расчёты, административно-учебная часть, спортивный зал и зона размещения старших смен (имеющих как чёткое разделение, отдельные входы, так и функциональные внутренние связи)

Ситуационный план

Схема формообразования

Функциональные схемы

Схема генерального плана

Визуализации

Вид со стороны ул. Зворыкина
Вид со стороны ул. Зворыкина
Вид со стороны ул. Кулибина
Вид со стороны ул. Кулибина
Вид со стороны ул. Зворыкина
Вид со стороны ул. Зворыкина
Вид со стороны ул. Кулибина
Вид со стороны ул. Кулибина
Вид со стороны двора
Вид со стороны двора
Вид со стороны ул. Зворыкина Вид со стороны ул. Кулибина Вид со стороны ул. Зворыкина Вид со стороны ул. Кулибина Вид со стороны двора

Фасадные решения

Скульптурный объем здания подчеркивает фасадное решение. Основной отделочный материал — белый глазурованный кирпич сочетается с белыми матовыми композитными панелями. Трёхчастность фасада подчеркивает горизонтальная рассечка на этажи. Со стороны двора фасад используется для тренировки по скалолазанию.

Эскизный-проект-станции-пожарной-охраны-19.jpg
Эскизный-проект-станции-пожарной-охраны-20.jpg
Эскизный-проект-станции-пожарной-охраны-19.jpg Эскизный-проект-станции-пожарной-охраны-20.jpg

Планировочные решения

Эскизный-проект-станции-пожарной-охраны-15.jpg
Эскизный-проект-станции-пожарной-охраны-16.jpg
Эскизный-проект-станции-пожарной-охраны-17.jpg
Эскизный-проект-станции-пожарной-охраны-18.jpg
Эскизный-проект-станции-пожарной-охраны-15.jpg Эскизный-проект-станции-пожарной-охраны-16.jpg Эскизный-проект-станции-пожарной-охраны-17.jpg Эскизный-проект-станции-пожарной-охраны-18.jpg

work@sredaa.ru