• Работы
  • О нас
Sredaa

Студия архитектуры и дизайна

  • Работы
  • О нас

Партнёрский центр «Элмонт»

Москва, Инновационный центр «Сколково», планировочный район D1

Идея: Пётр Любавин, Андрей Виниченко, Майя Ивлеева, Елена Гусельникова

Визуализация: Пётр Любавин

Выполнено совместно с архитектурным бюро YACHEYKA


Ситуационный план

Два варианта архитектурного решения

пост-1в.jpg
пост-2в.jpg
изометрия_1-вариант.jpg
изометрия_2-вариант.jpg

Генеральный план | 1 вариант

Генеральный план | 2 вариант

Принцип формирования внутренних атриумов

Принцип формирования внутренних атриумов

Разрез

Строгий объём здания имеет сложный внутренний атриум, благодаря которому помещения становятся светлее для работы и отдыха.

Первый вариант фасадного решения

Классическое, минималистичное городское здание с большими витражами и стенами с вентилируемым фасадом с обшивкой из натурального камня и локальными декоративными элементами из HPL с имитацией текстуры дерева.

пост_инстаграм_4_1.jpg
3-4.jpg
пост_инстаграм_4_1_к.jpg
фасад_1в_1.jpg
фасад_1в_2.jpg
пост_инстаграм_4_1.jpg 3-4.jpg пост_инстаграм_4_1_к.jpg фасад_1в_1.jpg фасад_1в_2.jpg

Второй вариант фасадного решения

Футуристичный, строгий объём, лишенный классических элементов здания, воспринимающийся цельным элементом, напоминающий объект машиностроения.

Фасады выполнены из модульного структурного остекления с алюминиевыми панелями.

2-2.jpg
1-2.jpg
пост_инстаграм_4_к.jpg
фасад_2в_1.jpg
фасад_2в_2.jpg
2-2.jpg 1-2.jpg пост_инстаграм_4_к.jpg фасад_2в_1.jpg фасад_2в_2.jpg

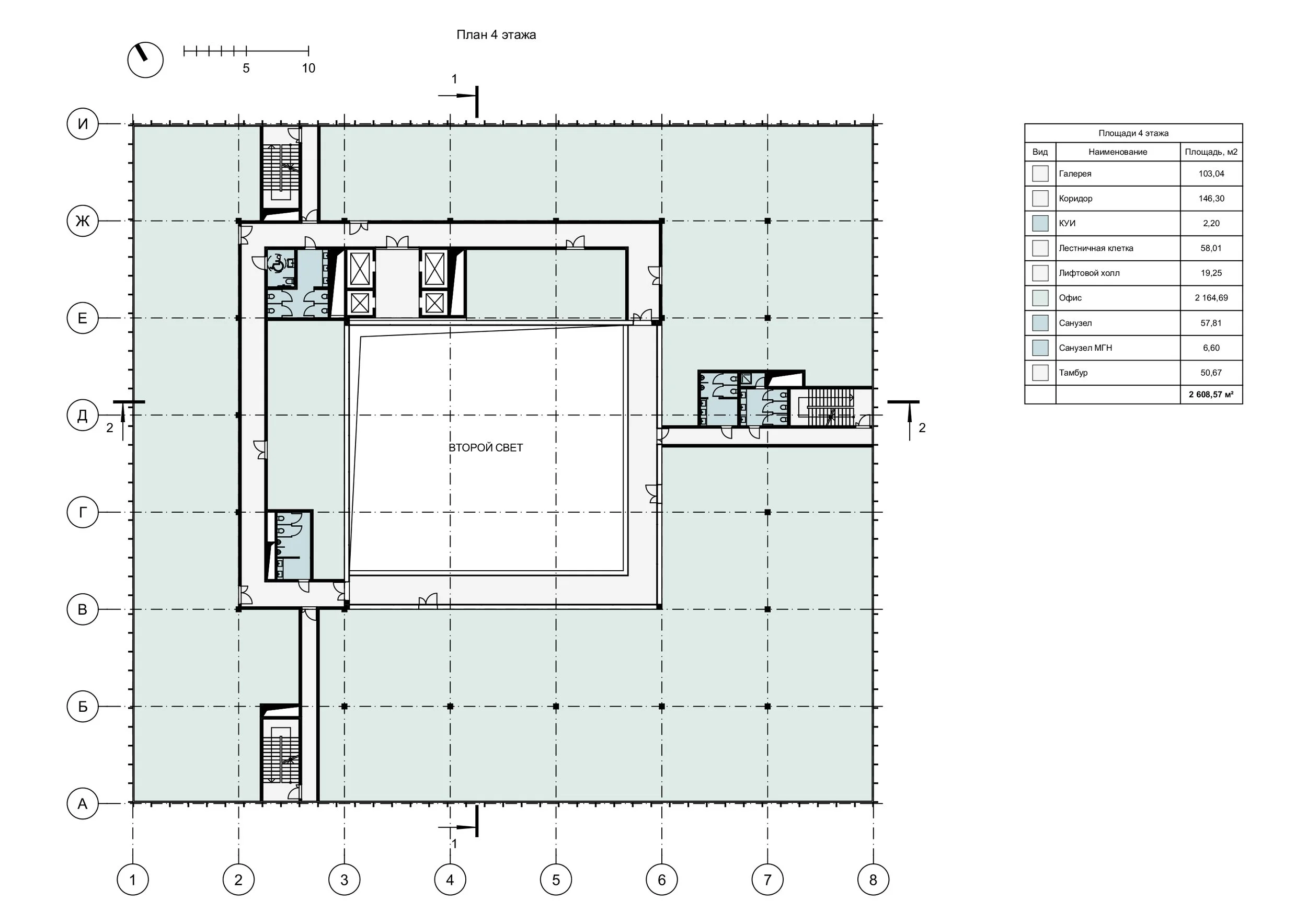
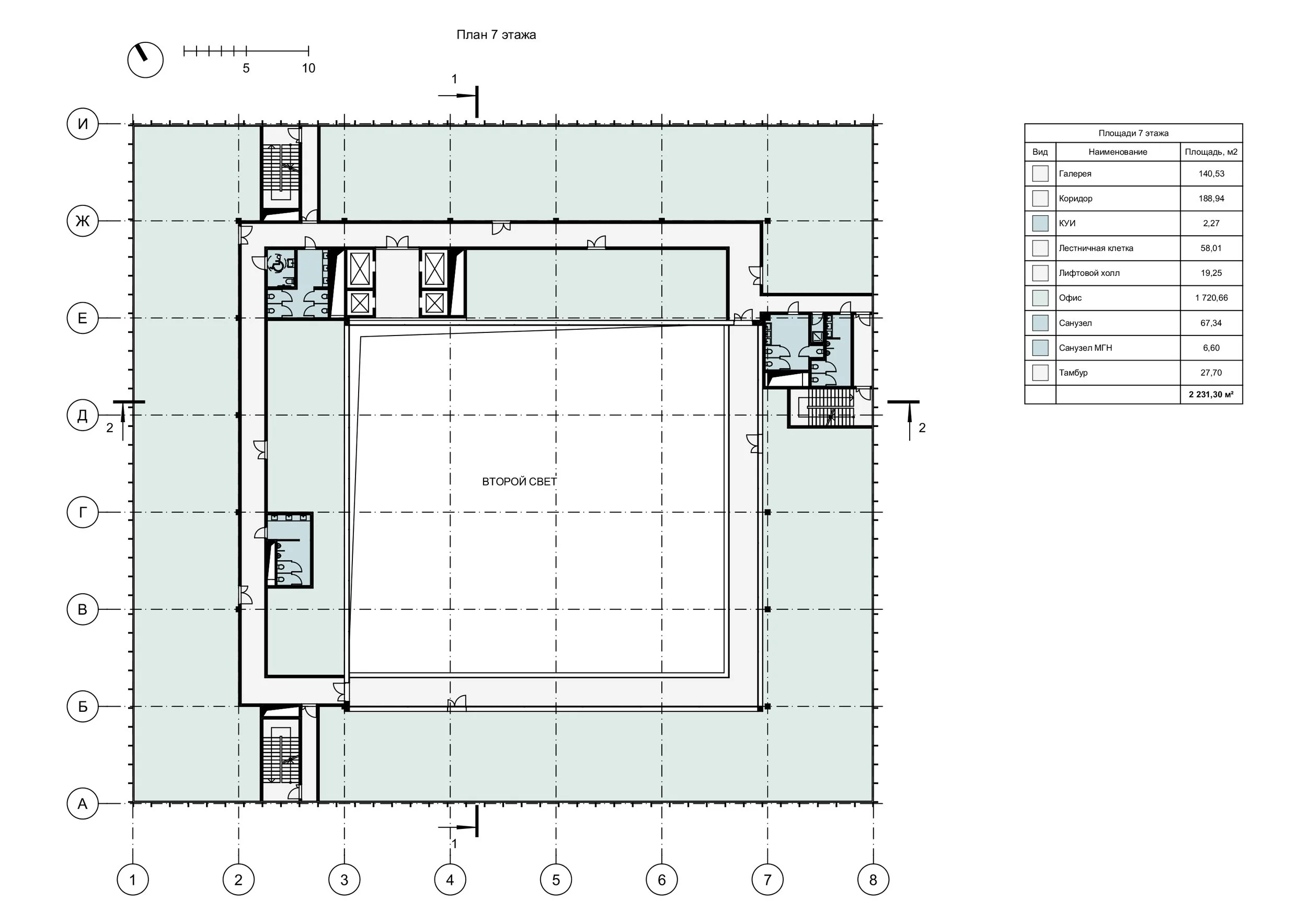
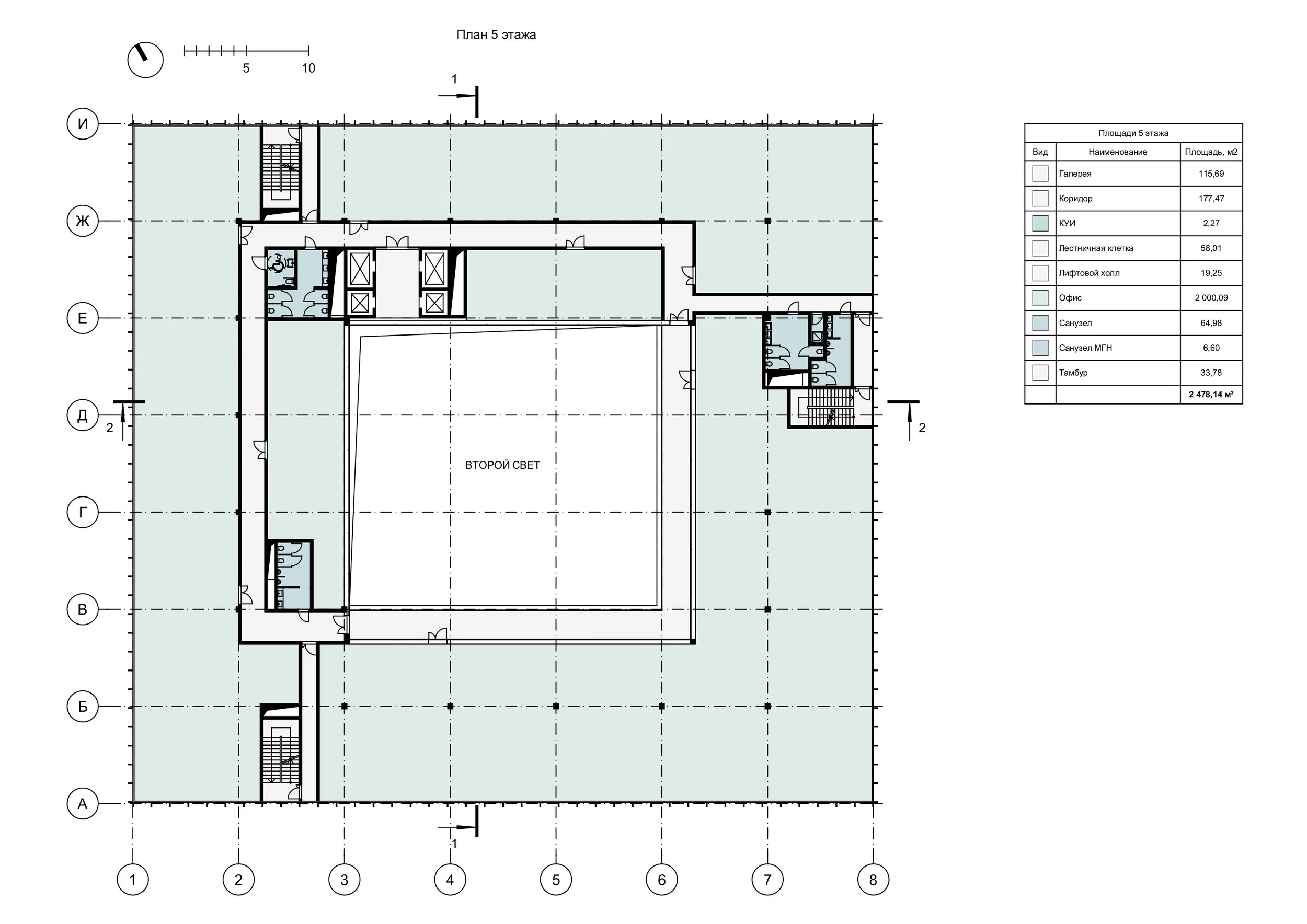
Планировочные решения

Помещения для рабочих мест с доступом к естественному свету через светопрозрачные сегменты зенитного потолка выполненные из стеклоблоков. Проектом предусмотрена открытая планировка опенспейс и возможность разделения общего объема на классическую кабинетную нарезку.

202_D1_2-2.jpg
1-этаж_3.jpg
2-этаж.jpg
3-этаж.jpg
4-этаж.jpg
5-этаж.jpg
6-этаж.jpg
7-этаж.jpg
202_D1_2-2.jpg 1-этаж_3.jpg 2-этаж.jpg 3-этаж.jpg 4-этаж.jpg 5-этаж.jpg 6-этаж.jpg 7-этаж.jpg

work@sredaa.ru