• Работы
  • О нас
Sredaa

Студия архитектуры и дизайна

  • Работы
  • О нас

Giorgio Grati

Магазин итальянской одежды в ГУМе

01.jpg
02.jpg
04.jpg
05.jpg
06.jpg
07.jpg
08.jpg
09.jpg
01.jpg 02.jpg 04.jpg 05.jpg 06.jpg 07.jpg 08.jpg 09.jpg

Москва, 2018

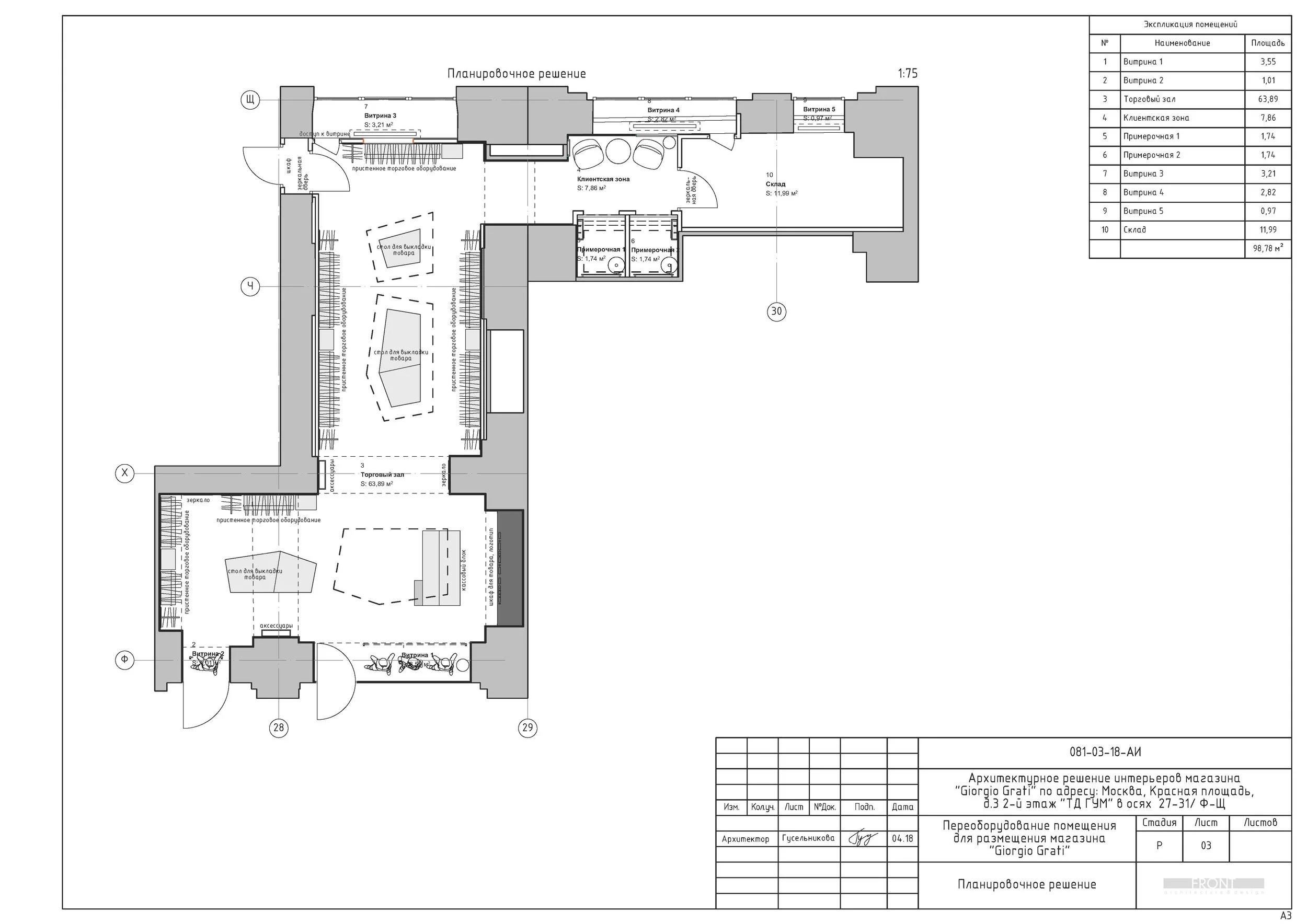
Задача: разработать проект магазина в ГУМе

Идея: Алёна Мифтакова, Андрей Виниченко

Чертежи: Елена Гусельникова

Визуализация: Артём Такбаев, Алёна Мифтакова

 

Sredaa разработала проект магазина итальянского бренда Giorgio Grati в ГУМе общей площадью 100 м2. 

 

 
 
180428_081 Giorgio Grati_альбом_Страница_04.jpg
180428_081 Giorgio Grati_альбом_Страница_09.jpg
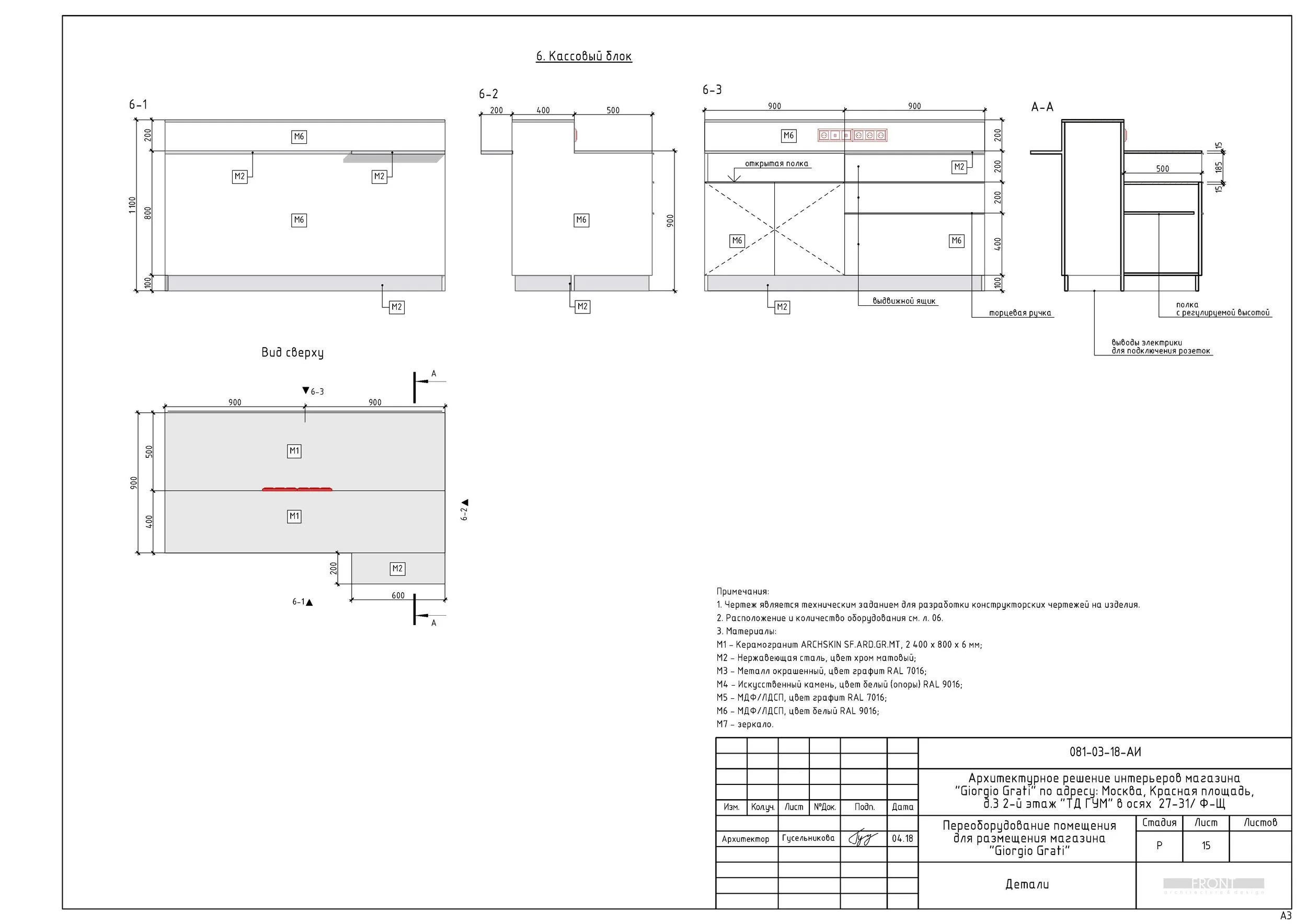
180428_081 Giorgio Grati_альбом_Страница_15.jpg
180428_081 Giorgio Grati_альбом_Страница_16.jpg
180428_081 Giorgio Grati_альбом_Страница_17.jpg
180428_081 Giorgio Grati_альбом_Страница_18.jpg
180428_081 Giorgio Grati_альбом_Страница_20.jpg
180428_081 Giorgio Grati_альбом_Страница_21.jpg
180428_081 Giorgio Grati_альбом_Страница_04.jpg 180428_081 Giorgio Grati_альбом_Страница_09.jpg 180428_081 Giorgio Grati_альбом_Страница_15.jpg 180428_081 Giorgio Grati_альбом_Страница_16.jpg 180428_081 Giorgio Grati_альбом_Страница_17.jpg 180428_081 Giorgio Grati_альбом_Страница_18.jpg 180428_081 Giorgio Grati_альбом_Страница_20.jpg 180428_081 Giorgio Grati_альбом_Страница_21.jpg
 

work@sredaa.ru